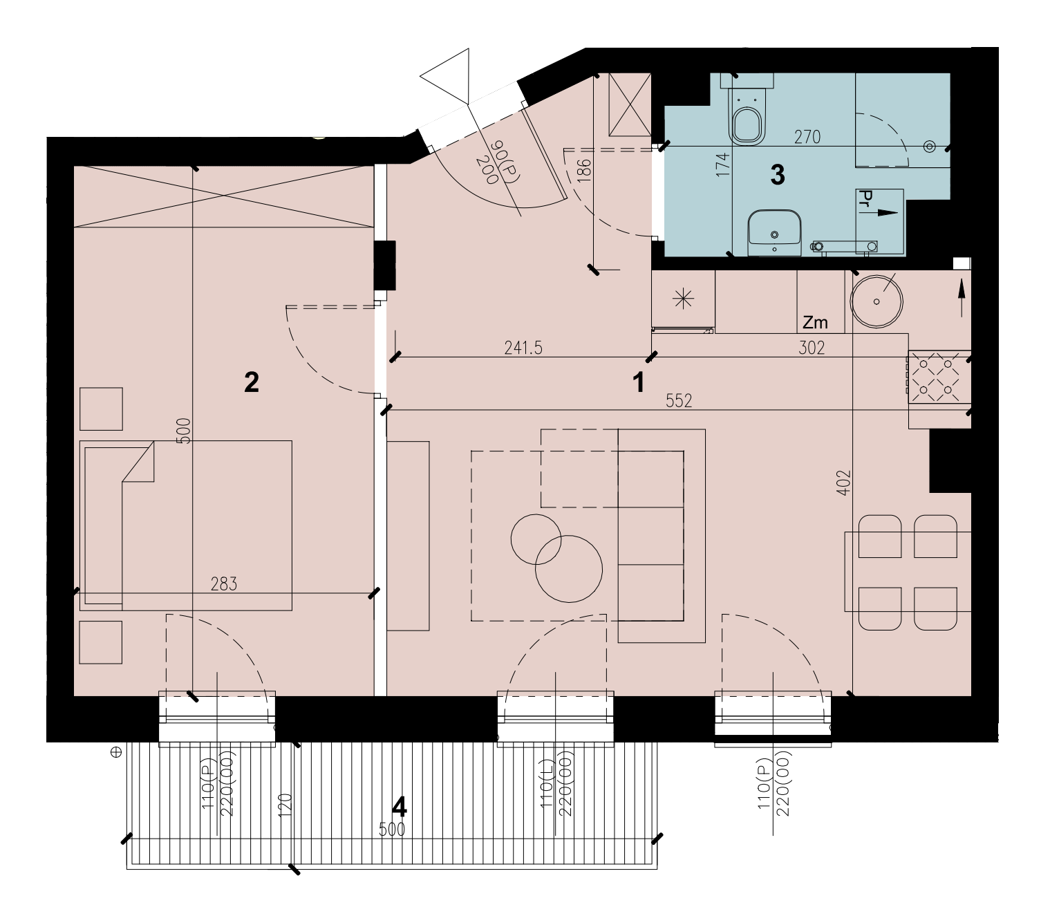
Продана Квартира M.4.22 Building B1 Floor 4 Поверхня 42,22 m2 Кімнати 2 Міні-кухня Price history Prospekt informacyjny