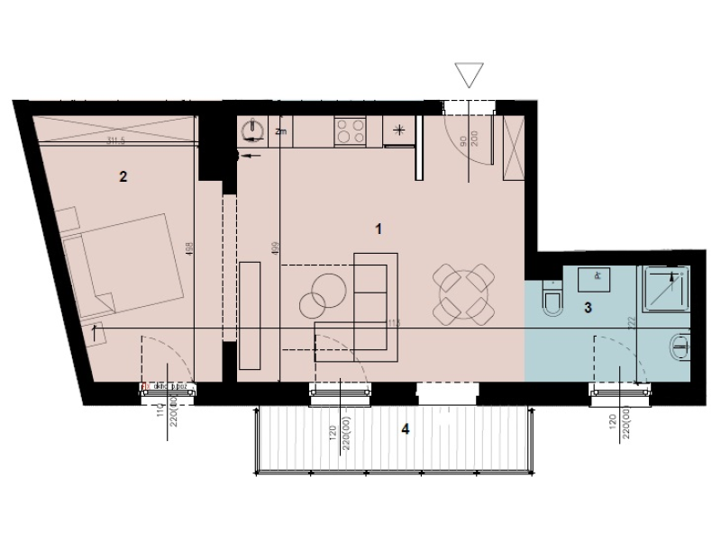
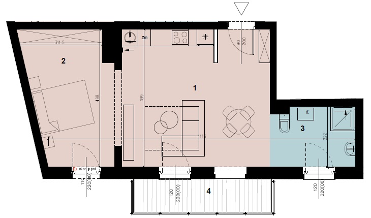
Продана Квартира M.4.18 Building B1 Floor 4 Поверхня 47,55 m2 Кімнати 2 Міні-кухня Price history Prospekt informacyjny