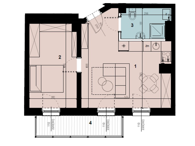
Продана Квартира M.3.17 Building B1 Floor 3 Поверхня 42,42 m2 Кімнати 2 Міні-кухня Price history Prospekt informacyjny